Regał półkowy grawitacyjny Karakuri 22071453

Kod: 22071453

Regał półkowy odpowiedni do realizacji metody Karakuri. System wykorzystuje prowadnice rolkowe i grawitację do łatwego pełny opis i parametry

Czas dostawy 3-4 tygodnie.

Zapytaj o cenę

Liczba sztuk

Opis i parametry techniczne

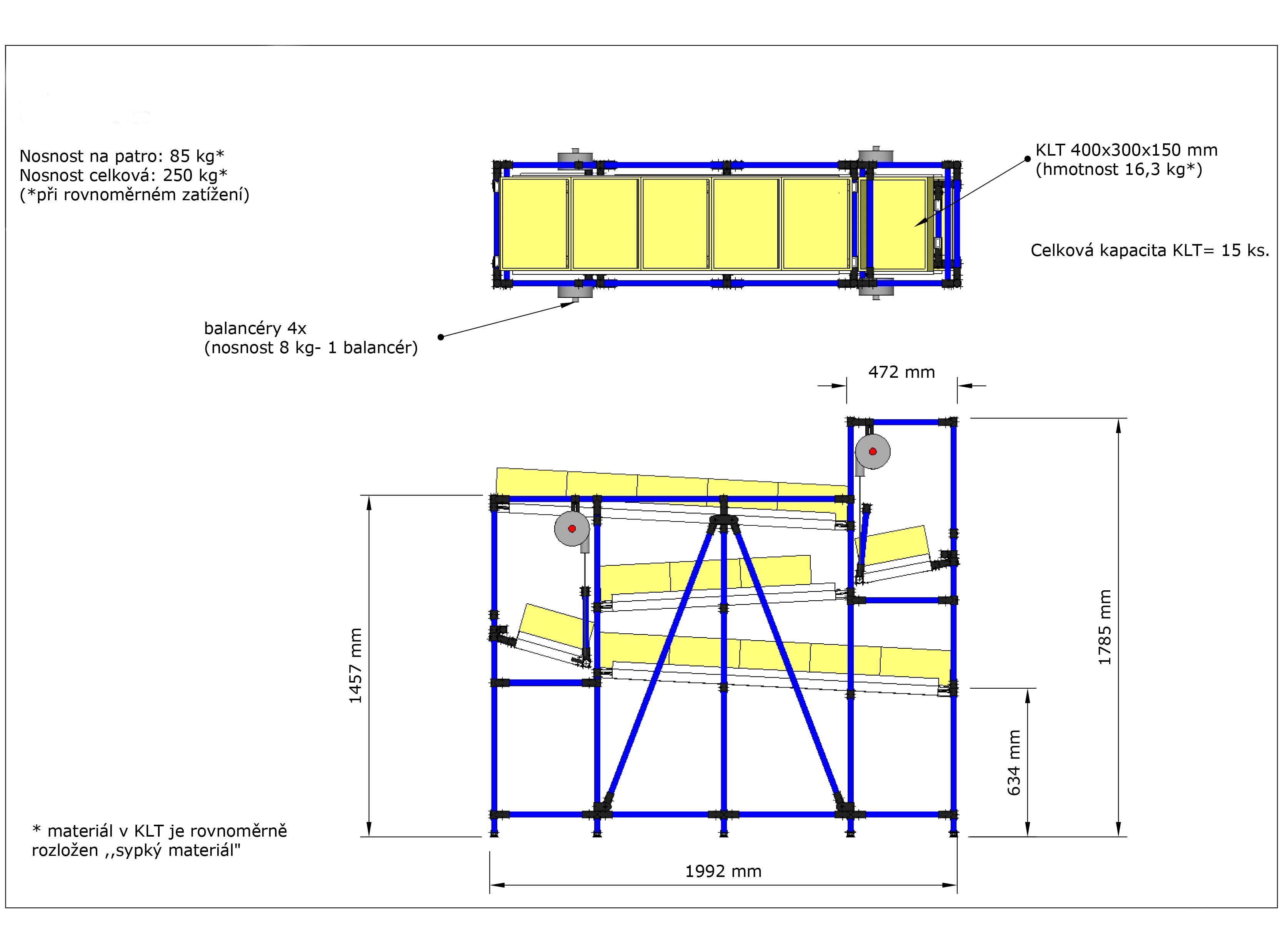
Regał półkowy grawitacyjny Karakuri 22071453

Regał półkowy odpowiedni do realizacji metody Karakuri. System wykorzystuje prowadnice rolkowe i grawitację do łatwego przenoszenia skrzyń. Półka pasuje do skrzynek KLT 400 x 300 x 150 mm, a całkowita pojemność półki wynosi 15 sztuk. Nośność podłogi 85 kg, nośność całkowita 250 kg. Regał wyposażony jest w 4 balansery o nośności 8 kg.

  • nadaje się do wdrożenia metody karakuri
  • nadaje się do transportu skrzyń KLT 400 x 300 x 150 mm
  • 4x balanser o nośności 8 kg (całkowite obciążenie 32 kg)
  • całkowita pojemność 15 szt.
  • nośność podłogi 85 kg
  • całkowita ładowność 250 kg

Konstruckja dostosowana, wszystkie wymiary można dostosować do potrzeb klienta. Rury dostępne są w kilku kolorach oraz w wersjach ESD lub ze stali nierdzewnej.

 

 

 

 

Warianty kolorów Wariant ESD Wariant ze stali nierdzewnej
Rura stalowa o grubości 1 mm (LP-1100) lub 2 mm (LP-1200) antystatyczna rura stalowa o grubości 1 mm (CP-1100BK) lub 2 mm (CP-1200BK) Rura ze stali nierdzewnej o grubości 0,7 mm (ST-1070) lub 1,1 mm (ST-1110)

 

 

Wersja czarna Wariant niklowy Wariant srebrny
metalowe kopertówki są zawsze dostępne w trzech wariantach – czarnym, srebrnym i nikiel

 

Gwarancja (lata): 2

Dopasowane akcesoria

Podobne produkty